
Crédit photo : Boxofficepro

Crédit image : Thibault Machu Architecture

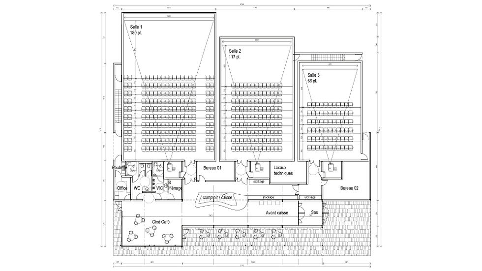
Crédit plan : Thibault Machu Architecture

Crédit photo : Boxofficepro
Le Majestic Panacéa
Construction d'un cinéma
Digoin (71)
2017
Architecte Mandataire :
Grima Loussouarn Architectes
L’association Panacéa, gérante du cinéma de Digoin Le Majestic veut créer un nouvel équipement cinématographique sur la zone de Ligerval, car l’actuel équipement n’est plus en mesure d’accueillir suffisamment de spectateurs, et nécessite une remise aux normes complète.
Le nouveau projet, implanté sur une zone commerciale dynamique, en entrée de ville, est basé sur une capacité de trois salles (180, 120 et 50 places), avec un espace cinécafé, un large hall pour accueillir des ateliers et animations, et une centaine de places de parking.
Etudes de conception, en collaboration avec l'agence Grima Loussouarn, architecte mandataire.
